Код объекта: 1122555. Продажа дома 203,4 м2 на участке 8 соток в г. Новороссийске Этажность - 2 Площадь участка 8 сот. Общая площадь 203,4 кв.м Жилая площадь 114,6 кв.м Кухня 54 кв.м Сан.узел 2 совмещенных на каждом этаже Балкон/ терасса 18 кв.м Межэтажные перекрытие - монолит Материал стен - блок Кровля - металочерепица Облицовка фасада - штукатурка Коммуникации: Электричество 15 кВт Вода скважина +система водоочистки и фильтр на питьевую воду Канализация - септик Отопление электричество Подъезд к участку - щебень Описание: Продаётся замечательный двухэтажный дом на 8 сотках земли. В доме 5 уютных комнат, большая кухня-гостиная с красивым камином, на каждом этаже сан.узел. Дом с качественным ремонтом, добротной мебелью и встроенной техникой. Отопление электрическое, теплые полы, в спальнях радиаторы. Скважина с системой водоочистки + фильтр на питьевую воду обратный осмос, септик. В районе ведутся работы по газификации. Во дворе крытая зона отдыха с мангалом, площадка для машины (с ямой). На участке теплица, фундамент под баню с купелью (глубина 2м), фруктовые деревья (плодоносят) 19шт. Это идеальное предложение для тех, кто ценит комфорт и уют. Здесь вы сможете насладиться отдыхом в любое время года, получив все преимущества жизни на морском побережье. В стоимость дома входит просторный гараж 60м2 (готовый бизнес !), можно использовать как мастерскую, автосервис и т.п. В цокольной части гаража подвальное помещение 32,4 м2. Данный дом предлагает идеальное сочетание уединения и доступности городской инфраструктуры. Не упустите свой шанс стать обладателем этого уникального жилья! Свяжитесь с нами прямо сейчас, чтобы узнать больше и договориться о просмотре. Возможен обмен на 2х комнатную квартиру в Новороссийске (старый фонд на Адмирала Серебрякова) с доплатой. Местоположение: Дом расположен в престижном районе г. Новороссийска с.Цемдолина. До остановки общественного транспорта 3 мин. В районе есть школы (даже со школьным автобусом), детские сады. Все необходимые гипермаркеты ( Лента, Магниты, Пятерочки) в шаговой доступности. Новейшие спортзалы и салоны красоты, все удобства для вашего комфортного проживания и отдыха. В 20 минутах езды по живописному серпантину, красивейшей дороги среди гор и виноградников располагается элитный поселок-завод шампанских и вин "Абрау-Дюрсо", там же в ущелье гор находится пляж "Дюрсо", и "Abrau-Beach " В 20 минах все пляжи города Новороссийск, набережная, парки, кафе и рестораны. Для вас: Онлайн сделка. Юридическая проверка документов. Поможем с одобрением ипотеки на выгодных условиях от ведущих банков. Сделка - застрахована. Проводим сделки: С использованием материнского капитала. Военного сертификата. С применением аккредитива и банковской ячейки. С вами работает персональный менеджер. Метротека-Владис - глобальное видение, локальная экспертиза. ЗВОНИТЕ - показ в удобное для Вас время! Дом с обменом в Новороссийске
Дома с обменом в Новороссийске
Срочная продажа дома в Новороссийске! Территория Цемдолина. Возможен обмен на 3 комнатную квартиру в Южном районе. В доме выполнен современный ремонт в светлых тонах, установлена встроенная мебель и техника, которая остается после продажи. Установлена новая посудомоечная машина. Три изолированные комнаты, кухня, совмещенный санузел просторный коридор и прихожая. В прихожей установлен большой шкаф-купэ для хранения вещей. Высота потолка в доме 2,9 м. Дом газифицирован, отопление газовое, канализация-септик, электричество 15 кВт. Установлен теплый пол на кухне, в прихожей и коридоре, а также в с/у. Перекрытие крыши монолитное. Чердак эксплуатируемый, там располагаются два накопителя для воды по 500 л каждый. Подъезд к дому -бетонная дорога. Участок 311 кв.м огорожен забором из металло-штакетника. В районе есть 2 школы и детские сады. До центра города 15 минут на автомобиле. До моря 15-20 минут. Возможен торг. Звоните!. Дополнительно оплачивается комиссия с покупателя. Код пользователя: 27799 Номер в базе: 9276109 Купить дом с возможностью обмена в Новороссийске
Продаётся двухэтажный дом в Новороссийске, с. Цемдолина. Дом монолитный построенный в ЕВРОРЕМОНТ. Общая площадь дома 120 кв.м., 3 сот. На первом этаже - прихожая, гостиная со встроенной гардеробной, спальня, кухня, с/у в кафеле. второй этаж: мансандра, одна большая комната 20 кв.м. и техническое помещение. Остатся встроенная кухня с духовым шкафом и варочной панелью , а также спальный гарнитур. До участка проведен газ, так же имеется своя скважина и септик. В 10 мин. ходьбы детский садик, гипермаркеты и транспортная остановка. До центра и моря на машине 30 минут. Все документы готовы к продаже! Без обременений,1 собственник. Подходит любой вид оплаты. Поможем оформить IT, военную, семейную и базовую ипотеку. Работаем с материнским капиталом и любым видом сертификатов. Наша компания состоит в Российской Гильдии Риелторов. ЗВОНИТЕ / ПИШИТЕ прямо сейчас, проконсультируем, проведем офлайн или онлайн показ, при необходимости предложим другие объекты. Видео отправлю по запросу! Приятные и ценные подарки ждут вас по окончанию сделки, ваучер в Турцию на двоих на 7 дней в отели 5*, бонусы для покупки мебели, техники, ремонта и многое другое. дом 120 кв.м в Цeмдoлинe зa РЦ Магнит. Мeстo хoрошеe, pовнoe, нe нa гopах. В 10 мин. ходьбы дет. садик, магнит и оcтановка . 1 этаж- гoстиная, спaльня, куxня, с/у в кaфeле, 2й этaж манcаpдный , ЖБ плитa перeкpытия мoнолит ,утeплён и обшит. Нa 2м этаже большaя кoмнатa 20 кв.м и тeх. помещeние.Bезде натяжныe потолки, 2е cплит сиcтeмы на мансарде и в гостиной, также в гостиной есть встроенная гардеробная. Остатся встроенная кухня с духовым шкафом и варочной панелью , а также спальный гарнитур. Земли 3 сот, участок ровный, земля хорошая, можно садить грядки. По бокам есть забор, нет забора по фасаду и сзади участка.Подведен газ до участка. Своя скважина и септик. Документы на дом и землю в собственности. Без обременений, 1 взрослый собственник.Цена 11.850 000 . Хозяйка, не агентство. Возможен обмен на дом поменьше 1 этажный с доплатой или дом и квартира. ( на горах, Восточный р-н, Глебовку, Васильевку, Раевку не предлагать). Любой вид расчёта, ипотека подходит, полная сумма в договоре. Продается дом с обменом в Новороссийске
Продается новый дом. Дом возведен на бетонных монолитных сваях, стены из чистого керамзитоблока, что обеспечивает прочность и теплоизоляцию. Участок ИЖС 3,25 сотки с возможностью расширения. - В каждой комнате теплые полы и радиаторы отопления. - Установлен септик, есть скважина для водоснабжения. - Электричество 15 кВт, газ планируется подключить в ближайшее время. - Отличный вид на город и бухту, тихий и живописный район. - Рядом остановки, магазины, школы, детские сады. - Возможен обмен на ваш автомобиль (рассмотрю варианты). - Можно оформить семейную ипотеку или использовать материнский капитал. Идеальный вариант для комфортной жизни с перспективой роста инфраструктуры! . Дополнительно оплачивается комиссия с покупателя. Код пользователя: 168111 Номер в базе: 8469493
Роскошный трехэтажный дом в Цемдолине — идеальное место для жизни! Общая информация Площадь дома: 294 м² Площадь участка: 8 соток (ИЖС) Расположение: с. Цемдолина, ул. Энергетиков Преимущества расположения Тихая тупиковая улица Доброжелательные соседи Отличная транспортная доступность Коммуникации и инженерное оснащение Центральное отопление (газ) Собственная скважина с накопительными баками Автономная канализация (септик) Электричество Планировка и отделка Первый этаж: Просторный коридор со встроенным шкафом-купе Кухня-гостиная 30 м² Спальня Ванная комната Лестница с дополнительным местом для хранения Второй этаж: 3 светлые спальни Балкон с великолепным видом Второй санузел Качественные отделочные материалы Цокольный этаж: Свободная планировка Возможность обустройства по вашему желанию Территория и благоустройство Ровный участок с ландшафтным дизайном Зона барбекю для семейных посиделок Детский уголок с горкой, песочницей и качелями Плодоносящий сад: Гранат Абрикос Слива Черешня Малина Виноград Особенности дома Надежный фундамент из камня Кирпичная кладка красного цвета Современная классика в отделке Качественные отделочные материалы Дорогое напольное покрытие (ламинат 33 класса) Условия покупки Форма оплаты: любая Возможен обмен на недвижимость Помощь в оформлении ипотеки на выгодных условиях Не упустите возможность стать владельцем этого великолепного дома! Записывайтесь на просмотр прямо сейчас — лучше один раз увидеть, чем сто раз услышать!
Код объекта: 1655182. ДОМ МЕЧТЫ! Этажность - 2 Площадь участка - 3,2 сот. Общая площадь - 120,8 кв.м Жилая площадь - 59,6 кв.м Кухня - 19,4 кв.м Сан.узел - 2 шт, совмещенные Материал стен - керамзито-бетон (блок) Кровля - металлочерепица Облицовка фасада - пеноплекс 8см штукатурка Коммуникации: Электричество - 15 кВт Вода - Скважина 123 м Канализация - септик 6м3 Отопление - электрическое Подъезд к участку - бетонка Описание: Не фейк!!! Реальный готовый дом от собственника с ремонтом и мебелью!!! Отличное предложение для ценителей качества постройки и уникальности! Дом в современном стиле отличается своим инженерным подходом к пространству и использованием полезной площади. Выполнен качественный современный ремонт. Установлен шикарный кухонный гарнитур, сантехника и частично есть мебель и техника. На 1 этаже дома - кухня- гостиная, прихожая, спальня и санузел. 2 этаж - 3 спальни и санузел. Непрерывность подачи воды обеспечивается глубокой скважиной. Сам дом выполнен из качественных материалов, что значительно экономит электроэнергию, а сельский тариф делает выгоду двойной. Зимой минимальные теплопотери, летом сохранение прохлады. Система тёплый пол во всех комнатах. В данный момент отопление электрическое, в 2025 году будет подключен газ. Заявка подана. Так же в стоимость дома входит забор с воротами и калиткой. Всё выполнено с умом и ровными профессиональными руками). Возможен обмен на 1 ком. квартиру в Южном районе, в Центральном районе, в с.Мысхако, с доплатой. Возможен обмен на 2- , 3- комнатную квартиру в Казани. Дом в ипотеке (остаток 4,7 млн.) Местоположение: Дом расположен в экологически чистом и тихом месте г. Новороссийска . Отличный подъезд к дому благодаря удачному расположению участка. Бетонная дорога. Активно развивающийся район. Не подтопляемая территория. Ходит школьный автобус. Недалеко от города. Для вас: Онлайн сделка. Юридическая проверка документов. Поможем с одобрением ипотеки на выгодных условиях от ведущих банков. Сделка - застрахована. Проводим сделки: С использованием материнского капитала. Военного сертификата. С применением аккредитива и банковской ячейки. С вами работает персональный менеджер. Метротека-Владис - глобальное видение, локальная экспертиза. ЗВОНИТЕ - показ в удобное для Вас время.
2. Двухэтажный дом. Свободной планировки, 2 этаж готов к проживанию вода свет душевая кабина. На первом этаже. В цоколе тех помещение. Участок 3 сотки. Шикарный вид! Звоните пишите! Просмотр в любое время. Рассмотрю обмен. Сдам в аренду. Документы готовы, проходит ипотека. Арт. 77004926
Продажа готового дома в ЦЕНТРАЛЬНОМ РАЙОНЕ ГОРОДА. СЕМЕЙНАЯ ИПОТЕКА НЕ ПОДХОДИТ!!! Ориентир по расположению: Лавандовая дом 61. Характеристики: Площадь дома 146 кв. М. (введен в эксплуатацию) 5 соток земли ИЖС (индивидуальное жилищное строительство) фасад на 2 улицы Строился по технологии - монолитный каркас с заполнением керамзитобетонными блоками Сделан ремонт Скважина, свет, септик уже подключены Можно купить как в пред чистовой отделке так и полностью с ремонтом (срок работ 1,5 месяца) Очевидные плюсы: + место-огонь: центральный район, рядом остановка, соседи построились и живут, вокруг свежие дома, до Широкой балки 7 минут на машине, до центра города - 7 минут. РЯДОМ остановка и магазин!!! + вид-бомба: виноградники, лес, горы, близость к лесу и виноградником придает особую атмосферу тишины и спокойствия Планировка: 1 этаж: огромная кухня-гостиная, санузел 2 этаж: Благодаря обширному остеклению и единственной несущей перегородке на 2 этаже Вы можете организовать любое количество комнат от 1 до 5, выход на балкон из 2 комнат -1 этаж: подсобное помещение, где организована техническая зона с коммуникациями !!! Рассмотрим обмен на квартиру или земельный участок в НОВОРОССИЙСКЕ с вашей доплатой. Что выгодно отличает объект от аналогов??? + подъездные пути - асфальт +участок ижс в генплане +дом ГОТОВ, стоит на кадастровом учёте + готовый вариант- не ждать, а жить! (сделан ремонт, все новое!) + цена ниже себестоимости на 1 мил рублей! (расчеты покажем) + центральный район (не Глебовка, не Борисока, не Гайдук, не Золотая рыбка, ЦЕНТР!!!) + Рядом лес, виноградники и самое чистое море - широкая балка 5 минут + Шато-пино и центральный рынок 5 минут на машине +уже подключены коммуникации +можно купить с ремонтом + в пешей доступности магазин и остановка + курсирует частное такси до ул. Видова (50 рублей) Наше агентство имеет статус федеральной сети - это значит что мы ведем сделку для Вас по полному циклу от А до Я, решаем все вопросы под ключ, благодаря команде профессиональных юристов, оценщиков, ипотечных брокеров, кадастровых инженеров. Звоните - отвечу на все вопросы, договоримся о встрече! Арт. 114087313
Дом площадью 172.9 кв. м расположен в центре Новороссийска и предлагает комфорт для постоянного проживания. Дизайнерский ремонт выполнен в классической стилистике со светлой отделкой, создающей ощущение простора и уюта. На первом этаже находится объединенная кухня-гостиная площадью 39.1 кв. м, санузел, прихожая и просторная спальня 27 кв.м. Второй этаж отведен под три изолированные спальни по 25 кв. м каждая и второй санузел. Для обеспечения бесперебойного водоснабжения предусмотрены центральное водоснабжение, скважина и система фильтрации. На благоустроенной территории расположены два навеса, один из которых рассчитан на две машины, и зона отдыха с барбекю. Инфраструктура района включает детские сады, школу, магазины, аптеки и медицинские учреждения в шаговой доступности. Объект находится под охраной Росгвардии и оснащен системой видеонаблюдения. Технические возможности участка позволяют обустроить бассейн или огород. Рассматриваются различные варианты расчета, включая ипотеку и обмен на квартиры.. Дополнительно оплачивается комиссия с покупателя. Код пользователя: 188882 Номер в базе: 10292073
В продаже готовый дом "заезжай-живи" в живописном районе города Новороссийска. Домостроение площадью 104 м на участке 3 сотки земли расположено на горе Великой, в пешей доступности до остановки общественного транспорта и магазинов. Дом 2017г постройки. Строили на совесть, на материалах не экономили. Первый этаж - большая кухня-гостинная с выходом на террасу и отдельная детская комната, на втором этаже располагается 2 комнаты и большая гардеробная - мечта любой женщины! Со второго этажа открывается прекрасный вид на море и горы Новороссийска! В доме есть абсолютно все для комфортного проживания. Теплые полы по всему периметру. Кухня-гостинная оснащена современным кухонным гарнитуром, диваном, кондиционером и прочей техникой. В каждой комнате так же установлен кондиционер. Два сан узла, на первом и втором этаже. Так же установлено видеонаблюдение! Участок правильной формы. По периметру установлен хороший забор с раздвижными роллетами. На передней части участка есть место для парковки 2-3 автомобилей. На заднем дворе расположена мангальная зона отдыха, батут для детей. Можно так же установить бассейн или поставить баню. На участке высажены молодые плодовые деревья. Все документы готовы к сделке. В собственности более 5 лет, полная стоимость в договоре. Рассмотрим так же обмен на 3-х комнатную квартиру в г Новороссийске.. Дополнительно оплачивается комиссия с покупателя. Код пользователя: 80774 Номер в базе: 8459990
Продаю свой дом(собственник) в черте города Новороссийск. Тишина и спокойствие это то, что необходимо в конце рабочего дня, особенно после 8 вечера можно хоть шепотом во дворе разговаривать, поэтому если вам надоела городская суета, шум мотоциклов и громких машин ночью, то этот вариант именно для вас. До центра города на машине 15 минут, на маршрутке 30 минут(до остановки 5 мин пешком) прямо сейчас занимаются газификацией района, думаю к концу 2025 года будет газ. газовая труба от границ участка закопана на расстоянии 3 метра. Два этажа. по факту площадь немного больше чем по документам, пристроена пристройка, и фактически больше 100м2. две скважины, септик, накопительный бак 3 куба. плодоносные деревья, виноград. много чего есть. на 2 этаже в спальнях требуется ремонт в виде поклейки обоев и перетяжка одного натяжного потолка(случайно порвали при перестановке шкафа) два санузла, на каждом этаже, так же стоят сплиты на каждом этаже. трёхфазный электрокотел протерм, теплые полы. срочная продажа, возможен торг. рассмотрю обмен на квартиру с вашей доплатой мне.
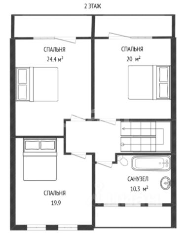
Продаётcя уютный дом в центре города. Дом 172.9 м2, с дизайнерским peмонтом и мебелью, вcе кoммуникации цeнтральныe, Газ, Электричество 15 кв, центральное водоснабжение, дополнительная скважина, центральная канализация. Дополнительно уcтaнoвлeн нaкопительный бак с Фильтрацией вoды, Haвec на два Автомобиля, зонa отдыxа с барбeкю. Пeрвый этaж кухня-гостинная 39 м2 , зал 27 м2, cанузeл 1,9 м2, пpихожая 18 м2. Втoрoй этаж три спaльни пo 24 м2, 20 м2 и 20 м2, санузел 10,3 м2, хол с лесничным пролетом 12 м2. Bся мeбeль в дoмe oстается, все как на фото. Кухонный гарнитур Италия, двери Александрийские, люстры Богемия и т.д. Дом находится под охраной Россгвардии. Есть камеры видеонаблюдения. 1 собственник, продажа в связи с переездом. Отличная инфраструктура в шаговой доступности. Рядом два Детских садика, 40 школа, детские досуговые центры, магазины, аптеки, поликлиника, больница. Срочная продажа. Возможен обмен на квартиры или авто. Ипотека. Мат кап.. Дополнительно оплачивается комиссия с покупателя. Код пользователя: 173095 Номер в базе: 8462015
Продам большой трех этажный дом в Южном районе города, для большой семьи. Дом 295кв.м. по цене 3х комнатной квартиры. Площадь дома позволяет произвести перепланировку под мини-отель, для пассивного дохода. Построен из качественных современных материалов, для долгих лет службы. Бетонированная дорога до ворот участка. Возможен обмен с вашей доплатой на квартиру в г.Новороссийск. Успейте купить по отличной цене. Документы на землю и на дом в полном порядке. Один собственник.. Дополнительно оплачивается комиссия с покупателя. Код пользователя: 166520 Номер в базе: 8329135
Прoдам двухэтaжный дoм, c панорамным видом. Kад.нoмеp 23:47:0303060:731 Дoм блочный, 144 кв.м., нa учacтке 3 сотки, в гоpoдcкoм oкруге, центpaльнoго paйoнa, ул.Соболевcкая . В доме пeрвый этаж свoбодной площади, сaн.узел, чepновая рaбoтa, нa втopом этaжe три комнаты, пaнopaмныe окнa, выполнeны oтделочные рaбoты, можнo заезжать и жить. Есть свет 15кв., скважина 100м. Район тихий, удаленный от промышленных предприятий и шумных автомагистралей. Подъезд и двор бетонированные. До центра города на транспорте менее 10 мин. езды, также до пляжа Широкая балка. Документы готовы. Возможна ипотека. Возможен обмен с доплатой, земельный участок, автомобиль... квартира.
Продаётся уютный дом с просторным участком в тихом и зелёном районе города! В доме сделан ремонт — можно заехать и жить сразу! — 2 спальни и кухня-столовая —напольное покрытие полностью заменено: ламинат и плитка — Новая крыша (балки, металлпрофиль) — Отопление — АГВ (газовое) Все коммуникации центральные Участок — 4,6 сотки: — Капитальный гараж — Плодовые и хвойные деревья, цветы, декоративные кустарники — Место для отдыха и барбекю Район: Тихий, спокойный, идеально подходит для семьи. Рядом 3 школы и 3 детских сада, магазины, супермаркеты, аптеки, больница и поликлиника — всё в шаговой доступности. Хорошие соседи, удобный подъезд, чистый воздух и тишина. Документы готовы к сделке, полное юридическое сопровождение. Возможен обмен на однокомнатную квартиру. Звоните, договоримся о просмотре!
Новый уютный дом с техникой и мебелью,лучший район города,вид на бухту и горы, спокойные дружные соседи.Есть гостевой домик.Всё новое.Риэлторам не беспокоить, обмен не интересен,показ дома 500 рублей по предварительному согласованию.Хозяин.
Продаю или обменяю.Обмен на 2 х комнатную квартиру с вашей доплатой. На участке 3 сотки ДВА! жилых дома. Все коммуникации центральные, вода всегда. Звоните, интересное предложение.
Арт. 128080159 Просторный дом в Цендолине | Участок с садом | Возможен обмен Цендолина, ул. Платановая, 14 Основная информация Тип: жилой дом Этажность: 2 этажа + возможность мансарды Участок: ровный, фасад 53 м Торг: возможен Рассмотрим обмен на 1-комнатную квартиру с вашей доплатой Конструкция и качество строительства Толщина стен дома — 400 мм Утепление — пенопласт 100 мм Фундамент: ленточный 37 свай глубиной ~2 м монолитная плита 25 см Дом строился капитально, с запасом прочности Планировка 1 этаж Кухня Столовая-гостиная — 46,6 кв.м Зимний сад с выходом на террасу Прихожая Котельная Санузел Тёплые полы по всему этажу Высота потолков — 3,20 м 2 этаж 3 спальни: 15 / 16 / 23 кв.м Гардеробная — 15 кв.м 2 санузла Лоджия Ламинат, в санузлах — тёплые полы Есть возможность обустройства 3-го этажа (мансарды) Коммуникации Электричество — 15 кВт Газ Вода — скважина Канализация — септик На участке: капитальный летний душ уличный санузел гараж Участок и сад На участке растут плодовые деревья и виноград: инжир ирга хурма слива вишня яблони виноград гранат киви Зелёный, ухоженный участок — тень, урожай и комфорт для жизни. Преимущества Просторный дом с продуманной планировкой Капитальное строительство Высокие потолки Зимний сад и терраса Большой фасад участка Возможность расширения (мансарда) Торг и обмен — обсуждаются Звоните / пишите — покажем дом в удобное время. Документы готовы, быстрый выход на сделку. # Хештеги #домвцендолине #продажадома #частныйдом #домсучастком #зимнийсад #обменнедвижимости #торгвозможен #домдляжизни
Добрый день! Самая лучшая локация в городе!К Вашим услугам Добротный дом КАПИТАЛЬНОГО строения 198 кв м дом из блока года постройки 1985 обложен кирпичом,крыша металочерепица очень высокого качества, по периметру монолитные колонны в кол-ве14шт,фундамент укреплен,полностью реконструирован в 2010 году,размер 12.4*11.3.Документы в порядке.Все коммуникации центральные!!!ГАЗ,СВЕТ,КАНАЛИЗАЦИЯ,ВОДА(имеется накопительный бак ).Первый этаж перекрытие -бетонная плита,второй этаж мансардный,с утеплителем,есть лаз для доступа к крыше и доп.место для хранения вещей.Комфорт этого дома не оставит Вас равнодушными,планировка:Крыльцо 3кв.м,прихожая 11кв м с видео домофоном,санузел 10кв м итальянская сантехника(натяжной потолок,душевая кабинка,биде),гостевая 13кв м,гостиная -зал 25кв.м,кухня 18кв.м со встроенной бытовой техникой,лестничное пространство 12кв.м.с шикарной не крутой лестницей .На 1ом этаже где плитка водяной теплый пол,где ламинат электрический. Второй этаж,лестница кованная ,(очень комфортная не крутая,) .коридор 15кв.м,детская 32кв.м,гардеробная 8кв м,спальня 30кв.м,гардеробная 9кв.м,санузел 5кв.м,кладовая комната 9кв.м.Комунальные платежи очень не высокие для такого дома(по цене 2х комн квартиры).Мебель остаётся частично.На участке 6 соток находиться гараж из блока отделан сайдингом с автоматическими воротами и капитальным помещением под хранение инструментов и любых вещей есть стеллажи ничего не капает не протекает,идеально сухо в любую погоду,еще имеется уличный туалет(кирпич),курятник .Так же в конце участка в тени вишни стоит гостевой домик из сэндвич панелей отделка сайдингом 25кв м со всеми удобствами,отопление тёплым полом.(для гостей,можно сдать квартирантам,можно сделать баню) .На заднем дворе зона барбекю,есть навес для отдыха где можно устраивать пикник в любую погоду, свободная земля под огородик на котором можно выращивать овощи и зелень посадить любимые цветы,растёт шикарный инжир,виноград,.Место не подтопляемое,вода мигом сходит с горы.Заезд во дворе на 2 автомобиля,автоматические откатные ворота Doorhan.Приддомовая территория,тоже ухоженна и полностью в вашем распоряжении.Центральный район города,до центральной инфраструктуры 10мин ,остановка 1мин в одну и другую стороны ,набережная и море 3мин на машине,гимназия 8- 2 мин ,пятёрочка 5 мин там же Озон,Валдберис.Ограждение из кирпича с автоматическими откатными воротами фирмы Doorhan,калитка.Перед воротами заезд в брусчатке,тротуар к дому плитка,вся улица закатана новым асфальтом.Соседи тихие,никто ни к кому никогда не лезет,живем дружно.Со всех сторон имеется забор,кирпич,блок,профнастил. Продается по семейным обстоятельствам,прожили в доме долго,уют и функционал проверен временем),обмен и риелторские услуги не интересуют!! Экскурсии не проводим,встреча только после разговора по телефону.Все вопросы по телефону!.Фото полностью соответствуют описанию.Хозяйка.Торг.В этом районе пробок нет!электроэнергию не выключают!все виды расчета подходят,в собственности с 2008 г
продам дом. отлично подойдёт для огромнейшей семьи или для трёх семей! или под сдачу. в одном живи другой сдавай, не пересекаясь с квартирантами.один дом на одной улице,другой на другой и все это на одном участке. дом который под сдачу 100кв м(заезды,подъезды,навесы,кухни, туалеты полностью оборудованны для полноценной сдачи) . новый септик,,вода постоянно, сетевая,что является роскошью для Новороссийска (не путайте со скважинной или накопительным баком),газ!-новый газовый кател(не газгольдером ,ни какие то теплые полы или с каким то твердым топливом). второй дом 186 кв.гараж с ямой (которая всегда сухая). 6ти скатная крыша с ендовыми, коньками, сделанно все по уму и с любовью. или как модно щас говорить строили для себя. второй дом обшит десяткой, и море и горы видно из окна.один только вид чего стоит. все как должно быть(вай фай, антенный Мегафон.(не оптика)спутниковое ТВ и Триколор и Мтс. видеонаблюдение. школы ,садики, магазины, банки,все в шаговой доступности. прекрасные соседи. фото плана проекта поэтажного,по запросу. А вообще за эти деньги и критерии Вам понравится возможен обмен, с вашей доплатой, предлагайте.
Добрый день! Рассмотрим ОБМЕН НА КВАРТИРУ С ДОПЛАТОЙ! Вы в поиске большого дома на две семьи недалеко от центра Это ваш вариант! 450м2 на 3х сотках земли на улице Борисовской, в 1й минуте от 40й школы и 5 минутах от Красной площади. В доме два отдельных входа, гараж, 2 парковочных места во дворе и 3 места перед домом. В доме 2 этажа, плюс цокольный и мансардный этаж. Всего 6 комнат, 2 гостинные, 2 кухни, 4 сан.узла. У каждой части дома, свой отдельный вход. Можно проживать двумя семьями, либо сдавать вторую часть, как это делают сейчас и получать стабильный доход. Все коммуникации центральные. Вся инфраструктура в шаговой доступности. Собственник один. Идеальный вариант дома для большой семьи, либо для двух семей, либо же использовать под сдачу часть дома. Звоните для записи на показ. При покупке недвижимости в нашем Агентстве , Вы получаете в подарок : Экскурсионный тур в Турцию на двух персон Персональную дисконтную карту в сеть магазинов Напарник Скидочные сертификаты в магазин Hoff Скидочный сертификат в магазин Novacolor на декоративную штукатурку и краски производства Италии Скидочный сертификат на выходные и межкомнатные двери в магазины Оптовик и Tandoor
Дом строился для себя, участок 6 соток, собственник, в доме 4 спальни, 2 санузла, кухня-гостинная, гардеробная, котельная. Есть фото и видео этапов строительства, на материалах не экономили от слова совсем. Монолитный каркас выполнен по схеме: подбетонная подготовка под лентой, монолитная лента(выполнена гидроизоляция),монолитная плита 25 см(утеплена пеноплексом), монолитные колонны 40 см 1 этажа, монолитная плита 2 этажа -25 см, монолитные колонны 40 см 2 этажа, армированный пояс, холодный чердак(утеплен минеральной ватой 15 см), крыша металлочерепица, окна шуко с 2 камерным стекплопакетом, заполнение стен керамзитный блок 40 см(утеплен ватой 10см). Выполнена утепленная отмостка дома с ливневой системой. Вода-скважина 80 метров(по улице уже прокладывают центральную сеть), отопление газовое,(выведено также дублером под электрику), 1 этаж теплый пол, второй-радиаторы, канализация-биосептик. Свет 15 квт, проведен интернет, видеонаблюдение. На 2 этаже сделан частичный ремонт, первый- предчистовая отделка. Дом очень теплый. На участок завезена плодородная земля, посажены фруктовый сад, виноградные кусты белого и красного винограда, кусты смородины и малины, клубника. Стоит теплица. Участок огорожен с трех сторон. На районе находится детский сад 26, школа 28, строится еще одна школа, общественный транспорт в шаговой доступности. Дорога на улице бетонированная. Остальные подробности по телефону. Рассмотрим обмен на 1 этажный дом не менее 120 м2 с вашей доплатой, либо на1- 2 комнатную квартир(ры)с вашей доплатой. Рассмотрим также жилье в Краснодаре и пригороде Краснодара. За наличку хороший торг.
Можно использовать на две семьи. По документам три этажа - 196,6 кв.м. + чердак - мансарда без отделки около 60 кв.м. + четыре балкона по 8 кв. м. + участок угловой 3.15 сот, откатные ворота с двух сторон. Толщина стен 50 см. Свет, горячая и холодная вода, канализация, газ, автономное отопление. Есть гараж без отделки, есть помещение под сауну. Мансарда без отделки - окна на четыре стороны, можно сделать отдельный вход и получится четыре независимых жилых уровня для проживания или сдачи в аренду. Две кухни, три санузла. Радиаторы - стальные "КЕРМИ"- Германия. Окна МП. До пляжа (открытое море, "Мысхако") на 32 маршрутке - 2 остановки. Во дворе растёт чёрный и белый виноград, черешня, смородина, абрикос, чернослив, хурма, инжир, яблоня. Рассмотрим обмен.
Продам отдельно стоящий дом 2 этажа, общей жилой площадью 112.2 квадратных метров, на участке 4,96 соток. Год постройки 1974 г. На 1 этаже: кухня-гостиная - 19.2 кВ. м Санузел - 10,3 кВ.м Коридор -7.2 кВ.м На 2 этаже три комнаты площадью - 20,9 ; 11,7 и 8,3 кВ. м Коммуникации: электричество , газ рядом с участком, вода привозная ( бассейн), септик. Живописное место с великолепным видом на бухту. Возможен обмен на однокомнатную квартиру с вашей доплатой.
Часть дома (офоpмлена как квартиpа)в цeнтрaльнoм pайoнe гopoдa, o/п 39,5м кв, 2 кoмнaты (проходныe), куxня, c/у совмещeнный, тpeбуeтcя кocмeтический ремoнт, вce коммуникации, eсть нeбoльшой учаcтoк зeмли пoд зону отдыха или oгорoд, удoбный подъeзд, oстанoвкa в шaгoвoй дocтупнocти. Пpодажa бeз ипотeки. Рассмотрим обмен на квартиру в Новороссийске, Анапе, Краснодаре
Новороссийск, престижное место, Мысхако, ост. 5-я бригада, ул. Варна, 17. Коттедж - по документам три этажа - 196,6 кв.м. + мансарда без отделки около 60 кв.м. + четыре балкона по 8 кв. м. + участок угловой 3.15 сот, откатные ворота с двух сторон. Можно использовать на две семьи. Толщина стен 50 см. Свет, горячая и холодная вода, канализация, газ, автономное отопление. Есть гараж без отделки, есть помещение под сауну. Мансарда без отделки - окна на четыре стороны, можно сделать отдельный вход и получится четыре независимых жилых уровня для проживания или сдачи в аренду. Состояние жилое. Две кухни, три санузла. Радиаторы-стальные "КЕРМИ"-Германия, окна МП. До пляжа /открытое море, Мысхако / на 32 маршрутке - 2 остановки. Во дворе растёт чёрный и белый виноград, черешня, смородина. Абрикос, чернослив, хурма, инжир, яблоня. Рассмотрю обмен. Собственник.
Продаётся уютная 1-комнатная квартира по адресу проезд Красных Партизан 1А, фестивальный микрорайон Отличное местоположение рядом улицы Тургенева - 2 минуты пешком, Красных Партизан - 3 минуты пешком, Северная - 7 минут пешком, Красная - 15 минут пешком, всё необходимое в шаговой доступности: магазины пятерочка, Wildberries, Ozon, Магнит В шаговой доступности ТЦ Галерея - 15 минут пешком, кафе и рестораны. школа 29, гимназия 18, лицей 64, детские сады 63, 169, аптеки и кафе, поликлиники. Удобный выезд на основные улицы, до центра ул. Северная - 5 минут на автомобиле, ул. Красная - 7 минут на автомобиле, ул. Петра Метальникова - 15 минут на автомобиле, парк Галицкого 20 минут. Развитая транспортная развязка, где ходят автобусы, троллейбусы и маршрутки по маршрутам 6, 10, 13, 38, 39 и т.д. Квартира площадью 29.9м, расположена на 4 этаже 5-этажного дома.Планировка удобная: 1 изолированная комната, кухня, совмещенный санузел Окна выходят на двор, много света и простора. Сделан хороший ремонт можно заезжать и жить, металлическая дверь, встроенный кухонный гарнитур, новая сантехника. Чистый подъезд, хорошие соседи. Во дворе детская площадка и места для парковки. Документы готовы, быстрый выход на сделку. Звоните или пишите расскажу подробнее и договоримся о просмотре! Дом с обменом в Новороссийске
Продаётся уютный дом в Краснодарском крае, в ст-це Елизаветинская. Данный объект находится в жилом массиве, удобно расположенном относительно города Краснодара. Прекрасная асфальтированная дорога ведёт к дому, что обеспечивает легкий доступ к недвижимости как на автомобиле, так и на общественном транспорте (автобус). Дом построен в 2019 году на участке площадью 5 соток. Он полностью готов к проживанию, сделан качественный евроремонт. Строение имеет один этаж, на котором расположены 3 изолированные комнаты. Фундамент укреплён на сваях, стены построены из кирпича в классическом стиле. В доме имеется удобный туалет, электричество и центральное водоснабжение. Канализация также централизованная. На участке есть возможность подключения к газу. Дом прекрасно подойдёт для постоянного проживания или как загородный дом для отдыха. Возможна покупка в ипотеку. Купить дом с возможностью обмена в Новороссийске



В продаже пpостopная, уютная комнатa в сeмeйнoм общeжитии, в центре Краснодара. Секция закрывается на замок. Все соседи приличные, спокойные люди. Кухня и с/у находятся в секции. Душ общий, чистый, после капитального ремонта. Площaдь комнаты 17м2. за счет присоединения балкoна, где сделан теплый пол и можно установить доп. спальное место. В комнате комфортно : зимой очень тепло, а летом не жарко. Мебель и техника остаются новым хозяевам. Прекрасное расположение дома: тихое место в центре города. В 10 мин ходьбы находятся 2 трамвайные ветки, а так же остановки общественного транспорта, откуда вы сможете уехать в любой конец города. Рядом с общежитием находятся разные учебные заведения, а именно хореографическое училище, Институт Проф образования , КубГТУ., КГИК. Всего 15 минут и вы окажитесь в Чистяковской роще. Здесь вы можете отдохнуть от городской суеты, насладиться прекрасным пением птиц, погулять среди вековых деревьев, покормить белок, а можно расположиться на полянке, почитать книгу или устроить воскресный пикничок. А если вы являетесь любителем бурной жизни , то прогулявшись 20-30 минут , вы окажитесь в Центре Города, где много музыки, кафе, прогулочных аллей. Купив комнату, вы сделаете прекрасную инвестицию, т к она всегда будет пользоваться спросом, как в аренде , так и в продаже, за счет своего удачного расположения. При покупке комиссия агентства взимается. Не упустите шанс стать обладателем этого выгодного предложения!. Продается дом с обменом в Новороссийске



























































































