


222 600 ₽/м²
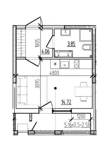
ЖК "Моренуар" — это новый уровень жизни в Новороссийске: современная архитектура, вдохновлённая морем, продуманный комфорт и высокая инвестиционная привлекательность. Эстетика курортной жизни в городе! Престижное местоположение. Комплекс расположен в южном районе Новороссийска, по адресу ул. Котанова 9. Близость к Чёрному морю — морские бризы, панорамные виды на горы и лёгкий доступ к пляжу. Высокое качество строительства. Монолитно-каркасная технология строительства гарантирует надёжность, отличную звукоизоляцию и энергоэффективность. Вентилируемый фасад из композитных панелей, благородных коричневого и бежевого оттенков, придаёт комплексу респектабельный внешний вид и обеспечивает долговечность конструкции. Высота потолков варьируется от 2,87 м до 6,4 м. На верхних этажах расположены видовые квартиры с просторными террасами, откуда открываются панорамные виды на город и море. Внутренне пространство. Дизайнерские холлы с современным оформлением подчёркивают статус жилого комплекса. Входная группа расположена на уровне земли для безопасности и комфорта жителей. Внутри вас ждёт красивая зона ожидания, места для хранения и колясочные. Лифты опускаются в подземный паркинг, обеспечивая удобный доступ к автомобилям в любую погоду. Комплексное видеонаблюдение внутри и снаружи жилого комплекса. Инфраструктура. На территории комплекса расположены 2 школы, 4 детских сада, поликлиника и специализированные студии для развития детей. Спортивные и детские площадки, места отдыха для жителей разных возрастов. На первых этажах комплекса разместятся 128 тысяч квадратных метров коммерческих помещений — магазины, кафе и сервисные центры в шаговой доступности. Варианты отделки. Предчистовая отделка в формате White Box. Это оптимальное решение для тех, кто хочет самостоятельно выбрать финишные материалы и воплотить в жизнь свои дизайнерские идеи. Квартиры с ремонтом - идеальное решение для тех, кто ценит своё время и хочет заехать сразу. Условия приобретения. Ипотека от ведущих банков. Льготные программы. Рассрочка от застройщика. Покупка для инвестиций. К моменту сдачи объекта стоимость вырастает — чистая прибыль без риска. Забронируйте квартиру сейчас и зафиксируйте цену на старте — это ваше преимущество на растущем рынке Новороссийска.























































































