Мы используем куки-файлы. Соглашение об использовании
Помещение свободного назначения, 289 м²

Продается помещение свободного назначения, 289 м²

Площадь289 м²
Этаж1 из 2
Отчёт о привлекательности объектаУзнайте, насколько помещение и район подходят для вашего бизнеса
Что входит в отчёт
  • Охват населения
  • Пешеходный трафик
  • Автомобильный трафик
  • Средний бюджет семьи по району
  • Арендные ставки рядом
  • Точки притяжения
  • Конкуренты в радиусе 1 км
  • Рекомендации по выбору места для бизнеса
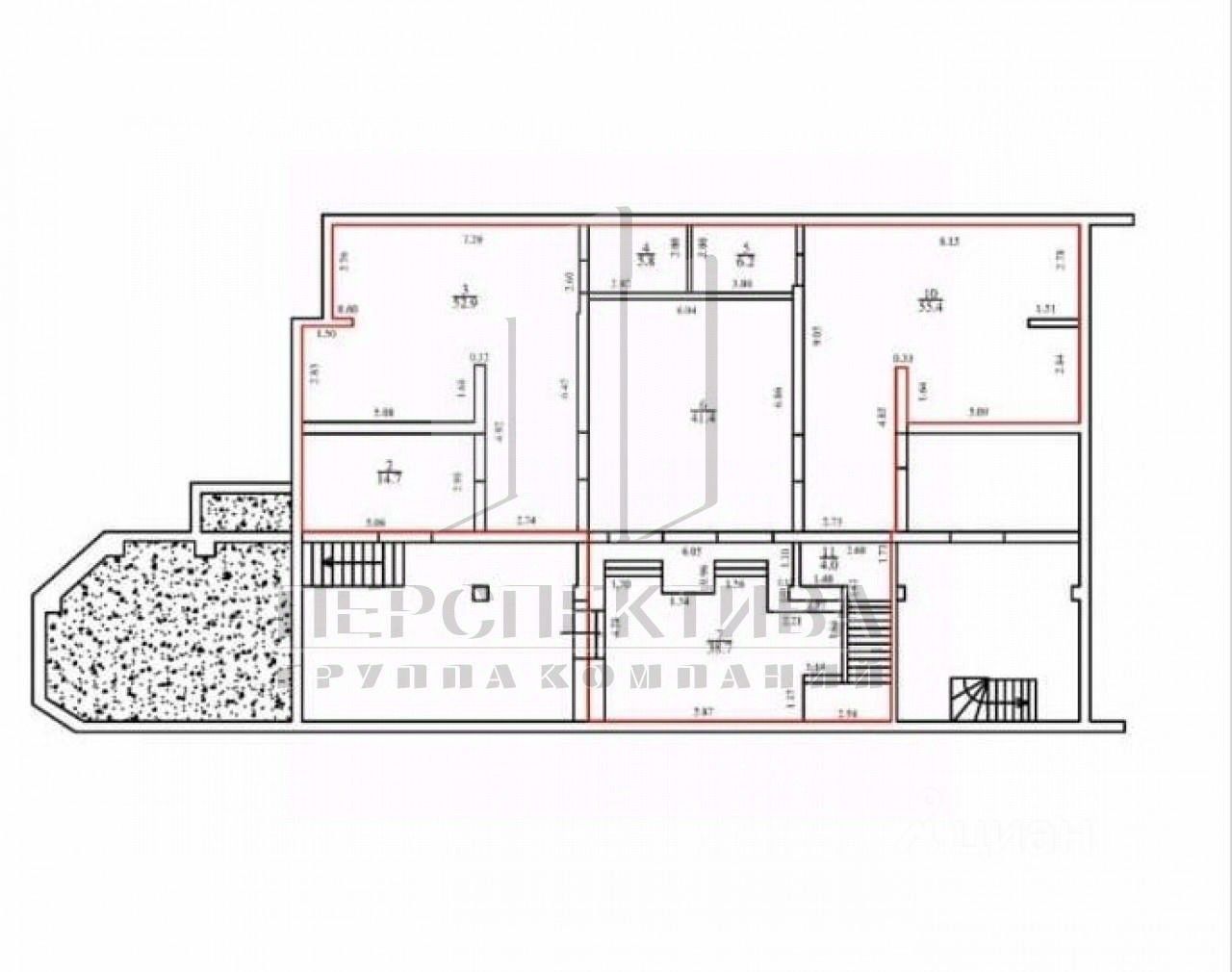
Арт. 120094816 Продам помещение свободного назначения 289 м2 в двух уровнях - Два входа. - Первый этаж 70м2 + Цоколь 219м2 - Предчистовая отделка. - Электричество 15кВт. - Парковка перед зданием. - Высокий пеший и авто трафик. - Развитая инфраструктура. Без дополнительных платежей и комиссий. Для получения дополнительной информации и записи на просмотр, пожалуйста, свяжитесь с нами по телефону. Ждем вашего звонка!
lock

Войдите или зарегистрируйтесь
для просмотра информации

Просматривайте условия сделки и всю информацию об объекте
Сохраняйте фильтры в поиске и не вводите заново
Доступ к избранному с любого устройства
Неограниченное добавление в избранное
Позвоните автору
Вам ответят на все вопросы
Остались вопросы по объявлению?
Позвоните владельцу объявления и уточните необходимую информацию.
  • Инфраструктура
  • Похожие рядом
  • Общая площадь289 м²
Помощь надёжных риелторов
Риелтор партнёр Циан поможет купить или продать любую недвижимость
20 000 000 ₽
280 864 $
242 294
Цена за метр
69 205 ₽
Налог
НДС не включен
Агентство недвижимости
Суперагент