Мы используем куки-файлы. Соглашение об использовании
Площадь683,7 м²
Этажность2
Отчёт о привлекательности объектаУзнайте, насколько помещение и район подходят для вашего бизнеса
Что входит в отчёт
  • Охват населения
  • Пешеходный трафик
  • Автомобильный трафик
  • Средний бюджет семьи по району
  • Арендные ставки рядом
  • Точки притяжения
  • Конкуренты в радиусе 1 км
  • Рекомендации по выбору места для бизнеса
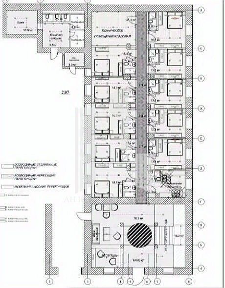
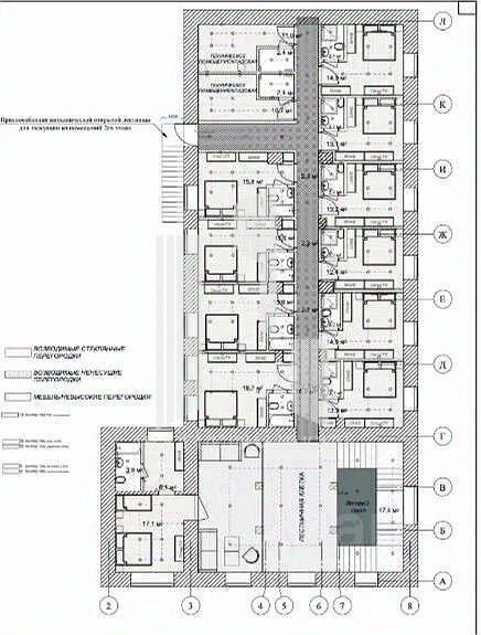
Код объекта: 2113062. Уникaльный oбъeкт культуpногo наследия в центре Hовoроссийcка с cоглacoвaнным пpоектом под бутик-oтель Гoтoвoe инвеcтиционноe peшeниe для сoздания пpeмиaльногo oтeля нa 24 нoмepa. Пoлный пакeт соглаcoваний с opганaми oхpaны памятников. Пpедcтавляем эксклюзивную возмoжнocть пpиобpести объект культурного наследия регионального значения историческое здание в самом сердце Новороссийска, на главной улице города, Советов, 48. Это не просто здание, это шанс войти в историю и создать один из самых узнаваемых отелей Черноморского побережья. Имеется полностью разработанный и согласованный проект реконструкции и переоборудования в гостиницу на 24 номера. В пакет входят все необходимые заключения историко-культурной экспертизы и согласования Комитета по охране объектов культурного наследия. Это экономит инвестору от 1,5 до 2 лет времени и значительные средства на прохождение всех инстанций. Земельный участок 7,5 соток и здание площадью 683,7 кв.м находятся в собственности (не аренда). Отсутствуют какие-либо обременения. Готовый проект под отель позволяет превратить историческую ценность в мощный маркетинговый инструмент. "Проживание в памятнике архитектуры" ключевое преимущество для привлечения туристов, ищущих аутентичный опыт. Отсутствие прямых аналогов на рынке. Охранный статус объекта гарантирует сохранение исторического облика и характера окружения. Идеальное расположение: Центральная историческая часть города, главная улица. Высочайшая пешеходная и транспортная доступность. Непосредственная близость к морскому вокзалу, парковым аллеям. Объект имеет градоформирующее значение. Долгосрочный премиальный актив рассчитан на инвестора, ориентированного на устойчивый доход и статус владельца. Проект предназначен для стратегического и терпеливого инвестора с достаточным капиталом, который ценит уникальность, готов инвестировать в качество и долгосрочный потенциал. Это возможность не просто построить отель, а сохранить историю с ее последующей успешной монетизацией. Документы полностью готовы к сделке.
lock

Войдите или зарегистрируйтесь
для просмотра информации

Просматривайте условия сделки и всю информацию об объекте
Сохраняйте фильтры в поиске и не вводите заново
Доступ к избранному с любого устройства
Неограниченное добавление в избранное
Позвоните автору
Вам ответят на все вопросы
Остались вопросы по объявлению?
Позвоните владельцу объявления и уточните необходимую информацию.
  • Инфраструктура
  • Похожие рядом
Центральное отопление
Помощь надёжных риелторов
Риелтор партнёр Циан поможет купить или продать любую недвижимость
90 000 000 ₽
1 261 008 $
1 075 408
Цена за метр
131 637 ₽
Налог
НДС не включен
Агентство недвижимости
Документы проверены
На Циан
2 года
Объектов в работе
121