Мы используем куки-файлы. Соглашение об использовании
Площадь683,7 м²
Этажность2
КлассB
Отчёт о привлекательности объектаУзнайте, насколько помещение и район подходят для вашего бизнеса
Что входит в отчёт
  • Охват населения
  • Пешеходный трафик
  • Автомобильный трафик
  • Средний бюджет семьи по району
  • Арендные ставки рядом
  • Точки притяжения
  • Конкуренты в радиусе 1 км
  • Рекомендации по выбору места для бизнеса
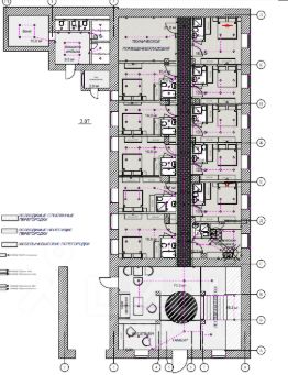
Предлагается 2-х этажное отдельно стоящее здание в центре города Новороссийск с согласованным проектом под бутик-отель!!! Готовое инвестиционное решение для создания премиального отеля на 24 номера! ВАЖНО: первая линия, 5 мин пешком до Набережной Адмирала Серебрякова, Морского вокзала, Форумной площади! Цена снижена и предложение ограничено по времени! - Общая площадь 683,7 м2; - земельный участок 6,3 сотки; - высота потолков каждого этажа 4 м. - Инфраструктура: - Подъездные пути асфальтированы; - электричество, водоснабжение и водоотведение. - электрическая мощность 100 кВт; - наземная парковка на 10 машин. Здание требует капитальной реконструкции, является памятником архитектуры. Полностью подготовлен Проект ПЗ АР КР, эскизный проект, Проект организации реставрации, Мероприятия по обеспечению сохранности ОКН и переоборудования его в гостиницу на 24 номера, получен полный пакет согласований с органами охраны памятников. Это сэкономит инвестору от 1,5 до 2 лет времени и значительные средства на прохождение всех инстанций. Готовый проект под отель позволяет превратить историческую ценность в мощный маркетинговый инструмент. Проживание в памятнике архитектуры — ключевое преимущество для привлечения туристов, ищущих аутентичный опыт. Отсутствие прямых аналогов на рынке. Идеальное расположение: Центральная историческая часть города, главная улица. Высочайшая пешеходная и транспортная доступность. Непосредственная близость к морскому вокзалу, парковым аллеям. Объект имеет градоформирующее значение. Долгосрочный премиальный актив и возможность сохранить историю с ее последующей успешной монетизацией. Рассмотрим обмен на жилую или коммерческую недвижимость в Питере или Москве. Легко купить: собственность физ. лица, без обременений, быстрый выход на сделку. Гарантия юридической чистоты сделки от компании. Звоните. Записывайтесь на показ объекта прямо сейчас. Оперативно покажем! Рады будем ответить на все ваши вопросы с 9:00 до 21:00.
lock

Войдите или зарегистрируйтесь
для просмотра информации

Просматривайте условия сделки и всю информацию об объекте
Сохраняйте фильтры в поиске и не вводите заново
Доступ к избранному с любого устройства
Неограниченное добавление в избранное
Позвоните автору
Вам ответят на все вопросы
Остались вопросы по объявлению?
Позвоните владельцу объявления и уточните необходимую информацию.
  • Инфраструктура
  • Похожие рядом
Естественная вентиляция
Центральное отопление
Помощь надёжных риелторов
Риелтор партнёр Циан поможет купить или продать любую недвижимость
350 000 000 ₽
4 883 631 $
4 201 807
Цена за метр
511 921 ₽
Налог
УСН
Агентство недвижимости