Мы используем куки-файлы. Соглашение об использовании
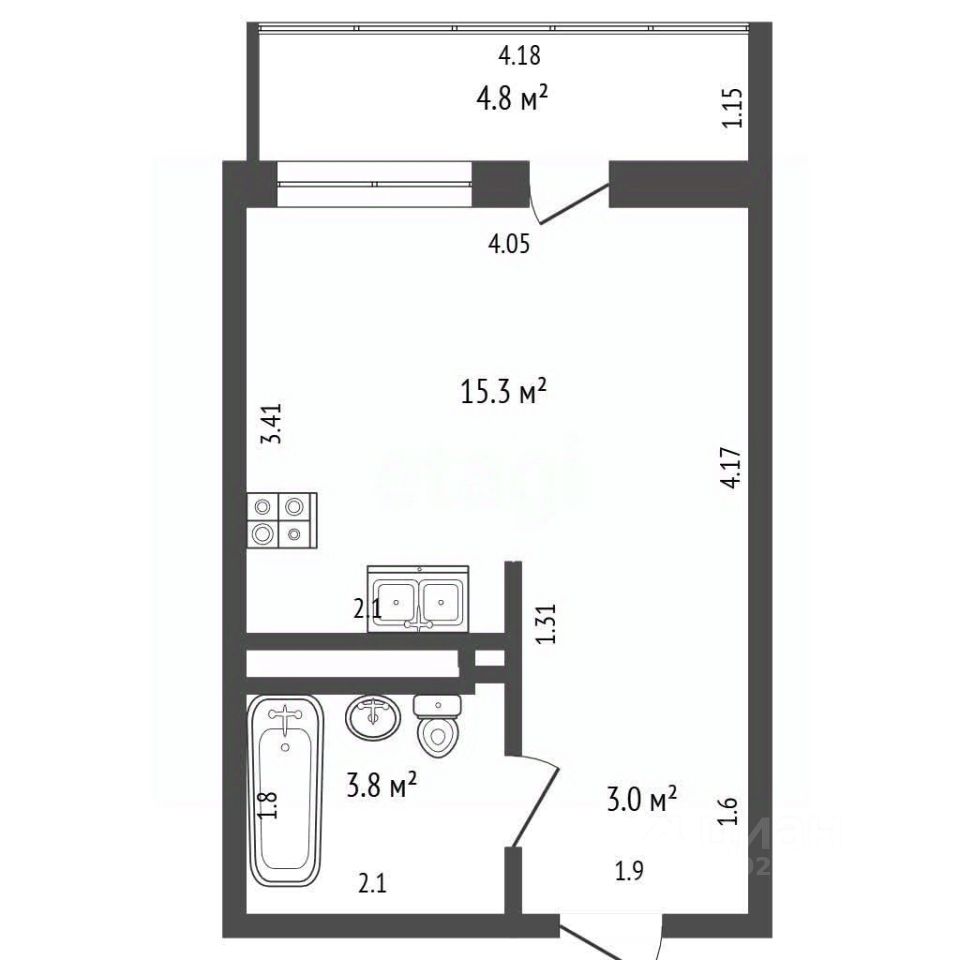
Общая площадь22,1 м²
Жилая площадь12,1 м²
Площадь кухни5 м²
Этаж23 из 23
Год постройки2024
Просторная видовая студия с готовым ремонтом в современном жилом комплексе. Квартира расположена на одном из верхних этажей монолитно-кирпичного дома. Жильё находится в развитом районе: в шаговой доступности магазины, аптеки, Южный рынок, торгово-развлекательные центры, остановки общественного транспорта, два детских сада и три школы. До моря и пляжа — всего 15 минут пешком или 5 минут на машине. Комплекс предлагает комфортную и безопасную среду: большая закрытая территория с детскими и спортивными площадками, круглосуточная охрана и видеонаблюдение, подземный паркинг и бесперебойная подача воды. Для связи и просмотра звоните по указанному номеру. . Дополнительно оплачивается комиссия с покупателя. Код пользователя: 200761 Номер в базе: 12452964
Позвоните автору
Вам ответят на все вопросы

О квартире

Тип жилья

Вторичка

Общая площадь

22,1 м²

Жилая площадь

12,1 м²

Площадь кухни

5 м²

Высота потолков

2,5 м

Вид из окон

На улицу и двор

О доме

Год постройки

2024

Тип перекрытий

Нет информации

Парковка

Подземная

Отопление

Нет информации

Аварийность

Нет

Спросите умного помощника
Получите экспертное мнение о жилье

Расположение

Ипотечный калькулятор
  • Базовая
  • Семейная
  • ИТ-ипотека
  • 20%
  • 30%
  • 40%
  • 50%
лет
  • 10 лет
  • 20 лет
  • 30 лет
Загружаем предложения от застройщика и банков
Помощь риелтора
Проверенный риелтор поможет купить или продать квартиру
8 475 000 ₽
Цена за метр
383 484 ₽/м²
Условия сделки
свободная продажа
Агентство недвижимости
Документы проверены
На Циан
7 лет
Объектов в работе
более 2000