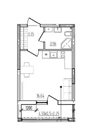
Продаётся студия в строящемся доме (Литера 22), срок сдачи: III-кв. 2026, общей площадью 28.4 кв.м., на 8 этаже. Квартира уже с готовым ремонтом - переезжать можно в день получения ключей. Панорамный балкон и увеличенные окна открывают шикарный вид на город, море и горы.
РАСПОЛОЖЕНИЕ
Квартира находится в развитом, экологически чистом Южном микрорайоне Новороссийска, в 20 минутах от лучших пляжей - Мысхако и Алексино. Представьте, как здорово отдыхать на берегу - шепот волн Черного моря, чайки, легкий бриз.
В шаговой доступности школы и детские сады, спортивные залы, торгово-развлекательные центры, магазины, рынок. Хорошая транспортная доступность.
На территории ЖК скоро появятся коммерческие галереи, школа на 1550 мест, 2 детских сада по 240 мест каждый, батутный центр и парковки.
ОТДЕЛКА
В квартире вас ждет качественный ремонт под ключ:
• Надежная металлическая входная дверь
• Дизайнерские межкомнатные двери цвета Дуб Сонома
• Матовые натяжные потолки
• Плотные виниловые обои пастельных тонов
• Витражное остекление балкона с бронзовой тонировкой, которая защищает от солнца и сохраняет вашу приватность
• Увеличенные на 20% окна, пропускающие больше света в квартиру
• Санузел под ключ: ванна с декоративным экраном, удобная раковина с пьедесталом, смесители, полотенцесушитель. На полу керамогранит
• Установлены все радиаторы, выключатели и счетчики
Благодаря тому, что фасад дома облицован плиткой с фактурой натурального камня, дом выглядит очень стильно и эстетично. Также застройщик установил корзины для сплит-систем с декоративными ламелями и централизованной дренажной системой.
Вы непременно оцените удобные входные группы на уровне земли - вам не придётся подниматься с коляской или с тяжелыми пакетами по ступенькам - всего пару шагов, и вы в подъезде возле лифта.
В уютном дворе - лиственные и хвойные деревья, рулонные газоны, современные детские и спортивные площадки с безопасным покрытием, зоны отдыха и много места благодаря широкой посадке домов.
ГИБКИЕ ВАРИАНТЫ ПРИОБРЕТЕНИЯ
Как застройщик, который более 30 лет на рынке, мы готовы предложить большой выбор вариантов приобретения этой квартиры.
• Наличный расчет
• Беспроцентная рассрочка
• Маткапитал
• Ипотека
Мы работаем напрямую со всеми крупными банками, и наши ипотечные специалисты возьмут на себя хлопоты по оформлению, а вам останется только приготовиться к переезду.
Кстати, если у вас есть дети, вы можете воспользоваться семейной ипотекой с низкой ставкой от 6%. Также у нас есть программы субсидирования, по которым застройщик платит часть процентов по ипотеке за вас весь срок.
Позвоните нам, и мы расскажем обо всем подробнее. Или приезжайте и посмотрите квартиру сами.