192 802 ₽/м²
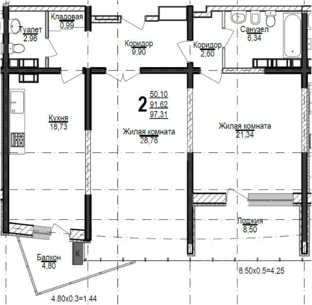
Квартира расположена на третьем этаже современного 17-этажного жилого комплекса "Марсель" в центре Новороссийска. Объект предлагает панорамные виды на море и город благодаря масштабному остеклению, выполненному с использованием солнцезащитных стекол, что обеспечивает комфортный микроклимат даже в летний период. Планировка евроформата объединяет кухню и гостиную в единое пространство площадью около 20 квадратных метров, что создает ощущение простора и света. Закрытый двор комплекса гарантирует приватность и безопасность. Жилой комплекс обладает уникальной архитектурой и расположен непосредственно на набережной, обеспечивая прямой доступ к пешеходной зоне и пляжам. В шаговой доступности находятся два парка, стадион, бассейн с морской водой, фитнес-клубы, а также разнообразная инфраструктура: рестораны, кафе, бары и школа. Транспортная развязка обеспечивает удобный выезд в любую часть города. Это предложение сочетает преимущества центральной локации, видовые характеристики и потенциал для создания современного жилого пространства под индивидуальные требования. Звоните, записывайтесь на просмотр. . Дополнительно оплачивается комиссия с покупателя. Код пользователя: 38341 Номер в базе: 11792802













































































